长假的第一天
一场突如其来的火灾
导致13条生命不幸逝去
是什么“堵”住了逃生之路?
一起来回顾这起案例
2020年10月1日
山西太原台骀山滑世界农林生态游乐园有限公司冰雕馆
发生重大火灾事故
造成13人死亡、15人受伤
冰雕馆内原本有5个出口
但在火灾发生时
有3个被人为封堵或紧固
1个无法从内部打开
安全出口成为安全堵口
13条生命不幸逝去
回顾事故发生经过

2020年10月1日,7时34分35秒
台骀山游乐园10千伏线路发生故障
为保证正常营业
8时50分许
景区水电部工作人员开启了4台自备发电机供电
故障排除后
工作人员直接将单刀双掷隔离开关
从自备发电机端切换至市电端
12时59分22秒
火车通道西口开始冒烟

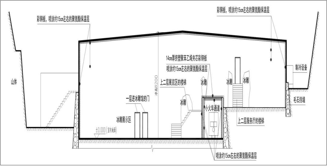
冰雕馆东口剖面图

冰雕馆西口剖面图

冰雕馆平面示意图
调查报告显示
违章带负荷快速拉、合隔离开关的操作
在火车通道照明线路上形成的冲击过电压
击穿了装饰灯具的电子元件造成短路
电子元件装置起火,进而引发火灾
事故发生时,冰雕游览区内共有28名游客被困
12时59分许
工作人员发现火车通道内冰雕馆一侧有明火
随即到配电室断电
13时01分许
另一工作人员发现冰雕馆西侧冒烟后
立即拨打119报警
冰雕馆负责人与现场员工开始灭火

起火后火势迅速扩大蔓延至整个冰雕馆
聚氨酯、聚苯乙烯等易燃可燃材料大面积燃烧
产生了大量高温有毒烟气
冰雕游览区内焦慧涛等游客
在闻到刺鼻的气味、发现冰雕馆内停电、
看到有明火由西向东蔓延并伴有浓烟后
沿原路返回
发现冰雕馆入口门无法打开
随即用力敲打、踹门
检票员听到后开门
15名被困游客由此逃生

冰雕游览区游览线路设计复杂
事发时冰雕游览区人为断电
现场无工作人员引导疏散
冰雕馆内疏散通道不通畅
5个出口中有3个人为封堵或紧固、
1个无法从内部打开
(西侧出口人为用冰块封堵、
南侧两个出口设置在火车通道内且用铁销紧固、
入口门无法从内部打开)
导致发生火灾时游览人员不能及时逃生
因一氧化碳中毒、呼吸道热灼伤、创伤性休克等原因
造成人员伤亡
13条生命不幸逝去


安全提示
《中华人民共和国消防法》第二十八条规定:
任何单位、个人不得损坏、挪用或者擅自拆除、停用消防设施、器材,不得埋压、圈占、遮挡消火栓或者占用防火间距,不得占用、堵塞、封闭疏散通道、安全出口、消防车通道。人员密集场所的门窗不得设置影响逃生和灭火救援的障碍物。
当发生火灾等紧急情况时
如果逃生通道不畅
会让人错失宝贵的逃生时机
最终导致无法挽回的惨剧
关于“生命通道”
一定牢记“七不能”
↓↓↓









